Na sprzedaż nowoczesne, słoneczne 2-pokojowe mieszkanie o powierzchni 36,25 m², położone na 2 piętrze w 5-piętrowym budynku z 2016 roku, w prestiżowej inwestycji Dom Development - Żoliborz Artystyczny.
Układ pomieszczeń:
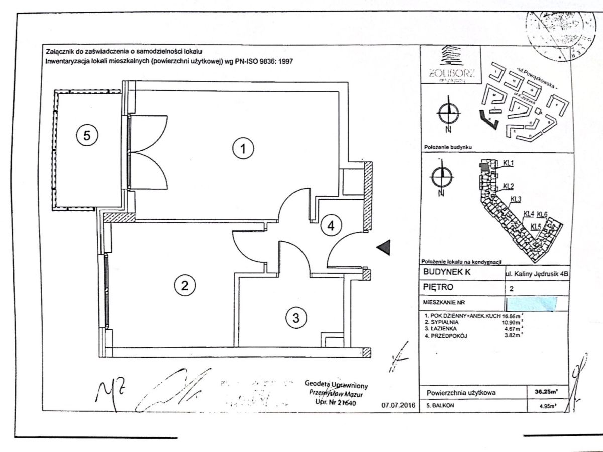
- Salon z aneksem kuchennym 16.86 m2- wyjście na balkon 4,95 m²
- Sypialnia 10,90 m²
- Łazienka 4,67 m²
- Przedpokój 3.82 m²
Wnętrze:
- Wykończone i gotowe do wprowadzenia
- Zachodnia ekspozycja - widok na park
- Umeblowane i w pełni wyposażone w AGD (lodówka, piekarnik, płyta, zmywarka, pralka)
Atuty inwestycji:
- Zamknięte, monitorowane osiedle z ochroną 24/7
- Winda w budynku
- Certyfikat energetyczny: C
- Pełna własność z KW
- Miejsce parkingowe w garażu podziemnym (oddzielna KW) - 50 000 zł
- Czynsz administracyjny: 530 zł/mies.
Lokalizacja i komunikacja:
- CH Arkadia - ok. 10 min samochodem
- Dworzec Gdański (metro M1, kolej SKM) - 10 min autobusem
- Liczne linie tramwajowe i autobusowe - 5 min pieszo
- Dworzec Zachodni - 15 min komunikacją
- Szybki dojazd do tras S8, A2, S7
- W pobliżu parki, przedszkola, szkoły, sklepy, restauracje
Idealne dla:
Singla, pary lub inwestora pod wynajem.
Zapraszam do kontaktu i na prezentację!
Dlaczego Randall Home?
Randall Home to zespół profesjonalistów z ogromną pasją do nieruchomości i pracy z ludźmi.
Naszym priorytetem zawsze są potrzeby klienta. Dzięki doświadczeniu zdobytym na rynku i pełnym zaangażowaniu w każdy etap transakcji jesteśmy zespołem wyznaczającym nowe standardy na rynku obrotu nieruchomościami. Każdą transakcję przeprowadzamy od A do Z działając nieszablonowo i skutecznie.
Zespół Randall Home tworzą osoby z bogatym doświadczeniem w sprzedaży i kompleksowej obsługi klienta. Wizja naszego zespołu to coś więcej niż standardy oferowane na rynku.
Zakup nieruchomości to decyzja na lata, dla niektórych na całe życie. Wiąże się często z różnymi obawami oraz koniecznością zaangażowania mnóstwa prywatnego czasu.
Priorytetem dla nas jest oszczędność Twojego czasu, bezpieczeństwo transakcji, dopasowanie nieruchomości spełniającej Twoje kryteria oraz zapewnienie komfortu i satysfakcji. Znakomicie znamy rynek, posiadamy oferty, których nie ma w internecie i znajdujemy nieruchomości marzeń.
Posiadamy podobne mieszkania w tej i innych inwestycjach - skontaktuj się z nami
a z chęcią zaproponujemy Ci nieruchomości dopasowane do Ciebie!
Przedstawiona wyżej oferta nie jest ofertą handlową w rozumieniu przepisów prawa, lecz ma charakter informacyjny.
Nowość na Żoliborzu Artystycznym - Rezerwacja
lokalizacja: Warszawa, Kaliny Jędrusik
890 000,00 PLN
24 551,72 PLN
Dane szczegółowe
- Typ transakcji: sprzedaż
- Typ nieruchomości: Mieszkanie
- Lokalizacja: Warszawa Żoliborz, Kaliny Jędrusik
- Powierzchnia:36,25 m2
- Liczba pokoi: 2
- Rok budowy: 2016
- Piętro: 2 z 4
- Numer oferty: RANDALL112976
- Cena: 890 000,00 PLN
- Cena za m2: 24 551,72 PLN
Opis nieruchomości
Kontakt do opiekuna:
Randall Investments