3 pok. | 2 ogródki | Garaż | Jana Kazimierza

lokalizacja: Warszawa, Jana Kazimierza

999 000,00 PLN

19 549,90 PLN

Opis nieruchomości

Wyjątkowe 3-pokojowe mieszkanie z dwoma ogródkami na Woli | Garaż podziemny i komórka lokatorska tuż obok mieszkania | Komfort, bezpieczeństwo i prywatna przestrzeń. 

Wyobraź sobie poranek, w którym pierwsze promienie słońca wpadają przez duże okna, a Ty pijesz poranną kawę na jednym z dwóch prywatnych ogródków. Słychać śpiew ptaków, w powietrzu czuć spokój, a mimo to mieszkasz na tętniącej życiem Woli.

To mieszkanie przy ul. Jana Kazimierza 64 to prawdziwa perełka, zaprojektowana z myślą o osobach ceniących sobie wygodę, nowoczesny stylu życia i funkcjonalność. Idealne dla rodziny, pary, singla lub jako inwestycja pod wynajem. Tutaj codzienność staje się przyjemnością - energia miasta i prywatna przestrzeń spotykają się w jednym miejscu.

Szczegóły mieszkania:


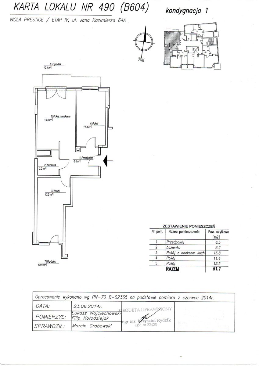
  • Powierzchnia: 51,1 m²

  • Liczba pokoi: 3

  • Piętro: parter/6

  • Wysokość pomieszczeń: 3,05 m

  • Stan wykończenia: do wprowadzenia, bez dodatkowych nakładów


Układ i funkcjonalność:


  • Salon z aneksem kuchennym (16,8 m²) z wyjściem na ogródek (10,1 m²) - przestrzeń idealna na wspólne chwile i przyjęcia

  • Sypialnia (13,2 m²) z wyjściem na ogródek (13,9 m²) - komfortowa przestrzeń do odpoczynku

  • Druga sypialnia (11,4 m²) - miejsce na pokój dzieci lub gabinet

  • Łazienka z prysznicem (3,2 m²)

  • Przedpokój (6,5 m²)


Dwa prywatne ogródki to idealne miejsce na poranną kawę, relaks po pracy lub zabawę z dziećmi!

Dodatkowe udogodnienia:


  • Miejsce postojowe w podziemnym garażu - dodatkowo płatne

  • Komórka lokatorska (5,4 m²) tuż obok mieszkania - dodatkowo płatna

  • Osiedle zamknięte i strzeżone (całodobowy monitoring i ochrona)

  • Plac zabaw, piękny teren zielony w obrębie osiedla

  • Stojaki na rowery, ławki, parking dla gości

  • Drzwi antywłamaniowe do mieszkania i komórki lokatorskiej


Lokalizacja - wygoda w zasięgu ręki:


  • Szkoła podstawowa - 300 m

  • Przedszkole - 50 m, żłobek na terenie osiedla

  • Sklepy i punkty usługowe: Biedronka - 230 m, Fort Wola - 400 m, Rossmann i Żabka 100 m., liczne piekarnie i restauracje

  • Salony kosmetyczne, fryzjerskie i studia masażu

  • Przychodnia na terenie osiedla

  • Przystanki komunikacji miejskiej: autobus - 150 m, tramwaj - 300 m

  • Bliskość terenów zielonych i placów zabaw


Cena:


  • Mieszkanie: 999 000 zł

  • Miejsce postojowe: 50 000 zł

  • Komórka lokatorska: 39 000 zł


Dlaczego warto tu zamieszkać:


  • Codziennie budzisz się w przestronnym, jasnym wnętrzu z dostępem do prywatnej zieleni

  • Masz wszystko w zasięgu ręki: edukacja, zakupy, komunikacja, rekreacja

  • Bezpieczeństwo i spokój - osiedle zamknięte, strzeżone, monitoring

  • Doskonała inwestycja - lokalizacja cieszy się stale rosnącym zainteresowaniem


To mieszkanie to więcej niż adres - to komfort, bezpieczeństwo i prywatna przestrzeń w sercu Odolan.

Zapraszam do kontaktu i na prezentację! To mieszkanie trzeba zobaczyć osobiście.

Khrystyna Struk
Agent Nieruchomości
tel. 459 116 434
Randall Home
www.randallhome.pl

Adres strony www: https://www.otodom.pl/pl/oferta/super-lokalizacja-na-woli-ul-jana-kazimierza-64-ID4ywYL

Kontakt do opiekuna:

Randall Investments

Khrystyna Struk
Nieprawidłowy adres E-mail
Mapa

Strona korzysta z plików cookie w celu realizacji usług zgodnie z Polityką prywatności. Możesz określić warunki przechowywania lub dostępu do cookie w Twojej przeglądarce.